Document
Comments:
[log in] or [register] to leave a comment for this document.
Go to:
all documents
Document
Bio-Toilet Correspondence 2
28-May-2010 [70]
• Building Composting Toilet At Playground
Correspondence
Storage area: We need a storage area for stuff, as for last year. It would probably be great to create it over by the site, to keep the green shed neat and clean around it and all. Can we order that fencing like we got last year do you think? Or some other option? I guess Tino is the guy to talk to about that?

Water-stopping garden: I would like to take the excess bricks/etc and make the base for that garden; Heidrun is going to help me. Then we can get that stuff cleaned up too. Chris/Jenny and I can fill it with soil and plants at our leisure, as we come across them. Can I go ahead?
Shed: I'll still want half of the shed for more valuable/fragile things, but the rest will be available to pool staff.
Hose: I'll want to cobble together a loooong hose to reach over that far to the site. Can I talk to Mayssan about maybe fixing some of those hoses we have at the south end so that I can sting them together?
Bags: I am thinking we will be doing an earthbag foundation. This requires polypropylene bags (flour and rice often come in these). Do you think any of the farmers might have a line on a source for these? And barbed wire?
Wheelbarrow: We are going to need a full-time wheelbarrow at the site. Should I ask for an extra one from someone?
Extra materials: Shall I talk to Sandy directly about the sand and gravel?
Accessibility: This building will be raised with a ramp and stairs. The ramp will be a steeper grade than is required for wheelchair use, but will be fine for strollers and the like. (To build a wheel-chair ramp would require 60 feet of ramp and probably 5,000 extra dollars!)
1. I think there's some metal barrier fencing up on the rink -- let's look tomorrow 2. the water-stopping garden sounds great 3. Lea may be a help fixing the hoses 4. Anne Freeman can help you contact farmers about flour bags and barbed wire 5. why not make a list of the things Parks and rec can help with, for Sandy 6. I think there's no need for wheelchair access in this little composting toilet. The two other park toilets have that. I think this is a red herring at this point. But that's only my opinion.
Sounds like we are rolling! I am finalizing the drawings now, and will order and pay for the toilet later this week. I am also busy sourcing the various materials required for the project. Last year we had an arrangement with the city (Tino's contact was Dan Popadiuk) so that we had access to sand and gravel as we needed it. Can we continue with that arrangement this year?
There may be fencing stored at the north end of the park, but if not, we will need some of that freestanding metal fence. It would also be really great to borrow a wheelbarrow from Parks for the duration of the project.

Forestry: I met with Chris Plant from Forestry yesterday and he OK'd the site location and reviewed tree protection zones with staff and I.
Materials: I am awaiting your word on arrangements for sand, gravel, fences and wheelbarrow.
Plans: I have sent them under separate copy.
Ontario 1 Call Surveys: I have not yet seen them at the park; any news on your end?
Attached is a ZIP archive containing PDF files of the plans for the composting toilet:
East section East elevation
North section North elevation
South section South elevation
Site plan toilet level Site plan roof level
Overall site plan


Notes:
To keep the depth shallow and the ramp and building height reasonable, there is a step up inside the building to get to the toilet. True accessibility would require digging down further to eliminate this step, and extending the ramp to at least quadruple its current proposed length.
Final ramp length and stair number will be determined as building progresses, and continuing efforts will be made to keep the roof height down. The drywell position may also move. Features such as openings, door shape and sculptural details will also be determined by available materials and needs determined at the time of building.


Georgie has submitted her site details to Peter about the washroom. Would you be able to mention that on the Rec. end staff will be helping out with maintenance – it is a partnered project between Celos and Parks and Rec after all.
As for the washroom, I need to discuss this with my manager to see what kind of commitment we can make to maintaining this Compost washroom. Like the field house washrooms Parks should be picking up the maintenance. As you know the Recreation budget is already stretched for the park. I will keep you posted.

We are starting the dig for the toilet in Dufferin Grove Park this Wednesday (July 12):
Survey: Need proof of completion by Tuesday afternoon.
Fences: Will need temporary safety fencing around the site during the dig.
Sand/Gravel: Need to have arrangement in place for these immediately so that I can order what I need during the construction; last year Tino set this up.
Wheelbarrow: Needed on-site by Wednesday.
I will be out of the park Monday and Tuesday as I will be busy sourcing other materials and organizing volunteers. You can contact me by email or at 416-531-7848. If any deliveries are set to be made at the park on those days, let Mayssan know at 416-392-0913 or 416-392-0913.
Thank you both for your help!

I tried you at your office but I think I missed you. I think I'm to have a copy of it on-site; can you drop it off to me or up at the rinkhouse?
Locates: Do the locates show that the area is clear for working?
Materials: - Fences can be delivered right on the site; about 20 should do it. - Sand/Gravel is to be delivered at various points in the construction, starting next week. Last year, arrangements were made through Tino so that I could call Dan Popadiuk the morning I needed the material and it was delivered that day; can we continue with this arrangement? - Wheelbarrow: one construction-type wheelbarrow needed on-site for Wednesday.
Electrical hookup: A solar-powered fan may still be an option, but if not I'll get you a plan including wiring.
Weeping tile/drywell: This is for the foundation and, though it's shown on the site plan, us subject to change based on tree roots. Though we will be well out of the Tree Protection Zone, I want to see what kinds of roots we find when we start digging. Is it the leachate bed that you want more info on?
Hello!
The composting toilet in Dufferin Grove Park is now a go for this summer! Over the next week, I will be preparing the site and doing some preliminary digs. Starting next Wednesday, we will be inviting volunteers to join us in creating the foundation for the building, and then we'll get cobbing.
More details next week!
Yours in cobbing,
Georgie
Thanks for the files. Unfortunately I can not open the zipped files as our system does not allow this. Could we meet to review the plans?


I am very concerned to have only heard back now that zip files are unopenable on your computer, as I sent the files last Thursday morning. I will re-send the drawings now, unzipped, under separate cover.
To imagine any more delays on this project is to really put its completion this summer in jeopardy; we are now starting a full month late out of an available three months to work. The last thing any of us wants is a half-finished, non-functional building that needs special protection over the winter.
I would like assurance that we are all working together here to start, sustain and finish this project. To me, our partnership means that I provide the organization and management, the volunteers, the plan, the product, and secure some financing. The city's part is to facilitate permissions in a timely manner, provide some staffing help and provide some material. So far my specific questions regarding materials have gone unanswered, and now I am to understand that the plans have not yet been looked at.
I understand that you must be swamped with your other obligations. If we can wrap up these final issues, I can get out of your hair and get to building.
Thank you very much for your consideration thus far, and I look forward to moving forward at best possible speed.
When the toilet assembly arrives, we'll need it picked up from a freight yard by trailer and brought to the park to be placed in its spot; the yard will place it on a trailer by forklift. This will probably happen between July 18th and July 26th. It weighs approx. 500 pounds. Is this something you can arrange?

While we are supportive of this initiative please appreciate that with our limited resources already out on scheduled work we DO NOT always have the capacity to accomodate these requests att the times you seem to be telling us you need them. Please also appeciate with every request comes costs we have not had in our budget for materials equipment etc. Please meet with Peter today and develop a lwork plant of ALL your requirements and the timelines so that we can at least stand a small chance of supporting you. I also think this would be a good time to start working out the rest of the operating arrangements so that we are planniing and working together not reacting to each request independently on a last minute basis. I need your cooperation and understanding in this matter to ensure a successful result for everyone.
Sandy & Peter,
Sounds like you are feeling agitated and wanting some acknowledgement that your department's resources are limited and that there are many priorities besides this project that are needing attention? Are you worried that things will keep cropping up with this project, and it would meet your need for effectiveness to know the extent of help required now instead of later?
I want to assure you that I have no intention of peppering you with requests for assistance. I have been stating my needs from the outset, in what I thought was clear, succinct language with clear time lines. Of course, there will be things that I cannot foresee, and I will do my best to make do with the volunteer resources at hand, but I do hope that I can at least request assistance from your department where it seems to me appropriate to do so.
In terms of toilet pickup, I found out about this only yesterday. Although I can deal with the unit once it is placed in its spot, I personally have no way of retrieving it from the freight yard. Knowing that your department does have material resources such as large trucks and trailers, I was hoping that help might be extended to the project in this way.
I am really hoping that we can work together to solve these issues; a composting toilet would be such an asset to the city, especially one as beautiful as this one is going to be. This link will show you some possibilities we are contemplating for the facade: www.ilovecob.com/ashan/pdx2005/pdx2k533.htm
For the sake of clarity, here is a comprehensive list of requests, with time lines, followed by a list of information that you require. Please let me know if it seems I am missing anything.
Requests
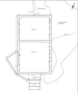
Safety fences: Immediate - Approx. 20-30, delivered just north of the electrical panel, west of the main path
Locates: Immediate - On 1 Call; have elec & plumbing
Wheelbarrow: Immediate - One construction-grade wheelbarrow to borrow for the summer
Gravel/Sand: Immediate and throughout the summer - Crushed rock, concrete sand and brick sand - Arranged with Dan Popadiuk through Tino last year, on an ongoing, as-needed basis (I would call Dan the morning that I needed material, and it would be delivered that day.)
Toilet pickup: TBA depending on delivery, likely between July 18 and 26 - Unit boxed is approx. 4'x6' and 8' tall, weighing 500 lbs - Trailer to be left at the park until volunteers can be amassed to wrestle unit off trailer and onto site, unless PFR can extend access to a forklift.
Information required by PFR
Electrics information: will send by Friday noon
Leachate bed specifics: will send by Friday noon
Maintenance agreement: Peter to draw up - I will continue to oversee maintenance of the physical structure; local park staff will see to toilet cubicle and compost maintenance
Peter, do you want to bring the agreement by the park? Friday in the afternoon would be fine for that, if that would work for you. The fences, locates and wheelbarrow can arrive at your earliest convenience, whether I'm there or not; just inform park staff at 416-392-0913. I'll send the electrics and leachate info by email.
Georgie
Thanks for your email today
We need to meet to review the plans and additional requirements prior to the installation of this structure. I had emailed you earlier this week requesting a meeting (see below). Please let me when we could meet in order to facilitate resolving the outstanding issues.
I just heard that the Building Department is interested in the composting toilet project at Dufferin Park. Just to let you know, the structure's outer dimensions are 8' and 15.5 ', but since it is an oval, it is under 100sq ft. I believe it falls outside the building code.
The building footprint will be under 100 ft2; current outer dimensions of the oval are 8' and 14.5', so that makes it around 91.1 ft2.
I have arranged for the supply of materials (sand and gravel) with a similar process to last year. Dan will require 48 hours notice to arrange delivery. I will pay for the materials.
Fencing will be installed early next week. I will provide a wheelbarrow you will be responsible for ensuring that it is returned at the end of the construction period.
Could you provide addional information regarding the date, location and dimensions of the unit so that I could understand what size of vehicle would be required. I can not guarantee that we would be able to pick this unit up.
Could you also advise me as to what your intentions are with the excavated materials from this site?
1.The fencing I am looking for is the modular, moveable metal kind, preferably that locks together. We will have piles of material surrounding the site and I will be needing to move the fence around often in order to get at various parts of the site, and to close off others. Is this the kind of fence you were thinking of? 2. date of arrival of the toilet unit: I will confirm this information as soon as I can. 3. Where the excavated dirt wil go: Topsoil we will be using for gardening and much of the subsoil will be used to build with.
We do not have enough modular fence to spare as this is required for events through out the summer. I will be meeting with Gus this morning to outlkine the area. I would ensure that there is enough space fenced off to contain any materials and provide room to work.
Thanks for the update on the excavated materials. Just to be clear material can not be removed from the Park without Ministry of Enviroment conditions being met. Materials can as you suggested be used within the Park.
We will need suitable drawings (architectural) to aquire the required Permits.
Liquid end product (leachate) After filtering through the compost pile, liquid receives secondary treatment in the well-aerated, stable, peat moss medium beneath the bottom baffle. The stability and tremendous surface area of peat provides an excellent filtering medium for treating liquid. The amount of liquid discharged from the Phoenix depends upon the amount of use it receives, and the temperature and relative humidity of the ventilation air. Approximately 20 liters (five gallons ) of liquid is added to the Phoenix for every 100 uses. Incoming ventilation air circulating above the secondary liquid treatment medium can evaporate some of this liquid. The remaining liquid draining from the tank should be directed to a leaching field. The liquid end product contains considerable bacteria and dissolved salts, but generally has a low coliform indicator concentration (<200 org/100 ml), low BOD, (<50mg/liter) and low TSS (<100 mg/liter) compared to septic tank effluent, so a short (8-foot) leach line is all that is necessary.
This line will run under an ornamental garden located to the immediate west of the structure, six inches under the surface of the soil. The line will be made of PVC weeping tile surrounded by filter cloth. It will be pumped there by a condensate pump which has a small reservoir and float switch and will pump the liquid up to the leach line.
Installed fencing is going to inhibit the ability to properly manage materials as they arrive, and to access them when we need them. So many doorways will be required that I think it will defeat the purpose of the fencing.
If you can't spare 30 modular fencing, then 10 would probably do to isolate the excavation area. Once the foundation is filled and we start building up, the fences may not even be required on site and you could retrieve them.
Clay The clay we bring onto our site (I need 14 cubic yards) must apparently be certified. There is a Works & Emergency Service work site on the Lakeshore at the Humber that appears to have exactly the clay we need. Peter has put in a call there too, and is waiting to hear back. If we don't get clay, the project does not go ahead; is there a way we can get some help getting this material asap?
Toilet Delivery I have been able to make arrangements for delivery of the toilet system so that we will not require help from the city in this regard.
I understand that the city is looking at installing more composting toilets at Cherry Beach, and possibly elsewhere. The Dufferin Grove Park project could be very important in terms of setting the standard for this kind of installation. This installation has the potential to be beautiful, functional and inspirational. It will reflect well on every person and department that has been involved in it, and will show Toronto's commitment to greening its environment, and its confidence in its public spaces, in a real and concrete way.
We have started digging the foundation and so I am mostly at the park now. I can be reached on my cell phone.
I have found a supply of clay and just need to make arrangements for delivery.

the "living roof" at the cob courtyard: the way the wooden supports are embedded in the cob is a building technique that's much older than architects
Thanks for having Roman bring those ties over. Unfortunately, they are 10" ties and it's the 14" that I need. Can you tell me where they come from? I know someone going as far as Mississauga today who could maybe pick them up.
Peter responded -- he's going to try to get the right ones for me.
Nice day for cobbing! Today, next Wednesday and maybe Thursday are probably our last days of mixing mud and earthbagging. Then we'll install a temporary roof and let the project rest until spring.

